Capri Holdings Store Design

Michael Kors: Belt Fixture Design

The project centered on enhancing belt sales through strategic fixtures, coinciding with the launch of new women's belt fixtures. We also aimed to explore opportunities for adding value to MK stores through product enhancements and addressing stakeholder challenges

Current Belt Fixtures

Due to a combination of factors including the placement of the fixture within the store, its size, and the materials and quality used, shoppers' attention wasn't directed towards the belt SKUs. This resulted in a significant decline in sales off the overall revenue from 2018

Suggested In Store Product Placement

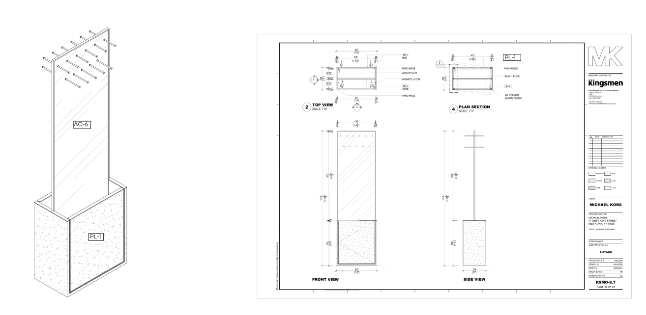
Suggested Design

Sustainability in Store

Michael Kors offers a variety of sustainable products, yet both employees and customers are unaware of these initiatives. Although these sustainable products can be found online, they are not classified as such in-store. Interistingly, the price range for these sustainable items remains consistent, contrary to the common perception that sustainable products are usually more expensive.

SUSTAINABILITY

PRODUCT

Reused Belts Seating

One proposed initiative involves introducing stools made from reused belts in the seating area. These reused belts serve a dual purpose: they raise awareness about our belt offerings and emphasize our sustainability efforts. These stools will be placed in the shoe salon, which experiences the highest foot traffic and houses most of our furniture

Let's enhance customer engagement in the store by setting up an Arcade Hammer Game to

that sustainability is expensive. We can achieve this by lighting up green lights placed in front of all sustainable accessories. This interactive and visually appealing setup will encourage customers to explore our sustainable products while challenging misconceptions about their cost

BREAK THE MYTH

TEAM: Jahnavi Shah, Ellie Tilyou
TOOLS & TECHNIQUES: AutoCAD, 3DS Max, Material Handling, Visual Merchandise, RFPs, Sales Forecasting, Budget Planning and Rollouts, Site Analysis, Fixture Design, Qualitative Research

Previous
Previous

Advertising & Promotion

Next
Next

System Design for ECCE